Madison Condo Sale- 메디슨 콘도 전매 정보
토론토 미드타운에 위치한 메디슨 콘도 전매 정보입니다.
2베드와 1+1 베드 그리고 1 베드 콘도를 전매합니다.
김선 리얼터와 미스터윤 리얼터가 함께 리스팅 하는 콘도 입니다.
자세한 내용 보시고 김선 리얼터에게 연락 주시면 콘도를 구입하실수 있도록 도와 드립니다.
또한 매디슨 콘도를 보유하시고 전매를 원하시는 분들도 연락 주시면
시세에 맞게 입주 전에 전매를 하실수 있도록 도와 드립니다.
647- 389- 5234
Madison Condos

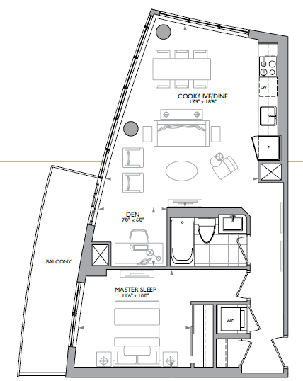
2 베드 메드슨 콘도 $610,000
29층 98 Lilian St (East Tower) 동쪽 타워
sales price: $610,000 – 세일 가격 : 61만불
2 beds, 2 washrooms – 방 2개, 화장실 2개
North West view, level 29 – 북서향 29 층
806 sqft. + balcony 318 sqft. -크기 806 sf (22.7평) + 318sf 발코니
Parking 1 – 파킹장 1개
10% down, 15% on closing – 10 프로 다운 페이, 15프로 입주시
Tentative Occupancy: Sept 26, 2016 – 입주 시기 2016년 9월 26일
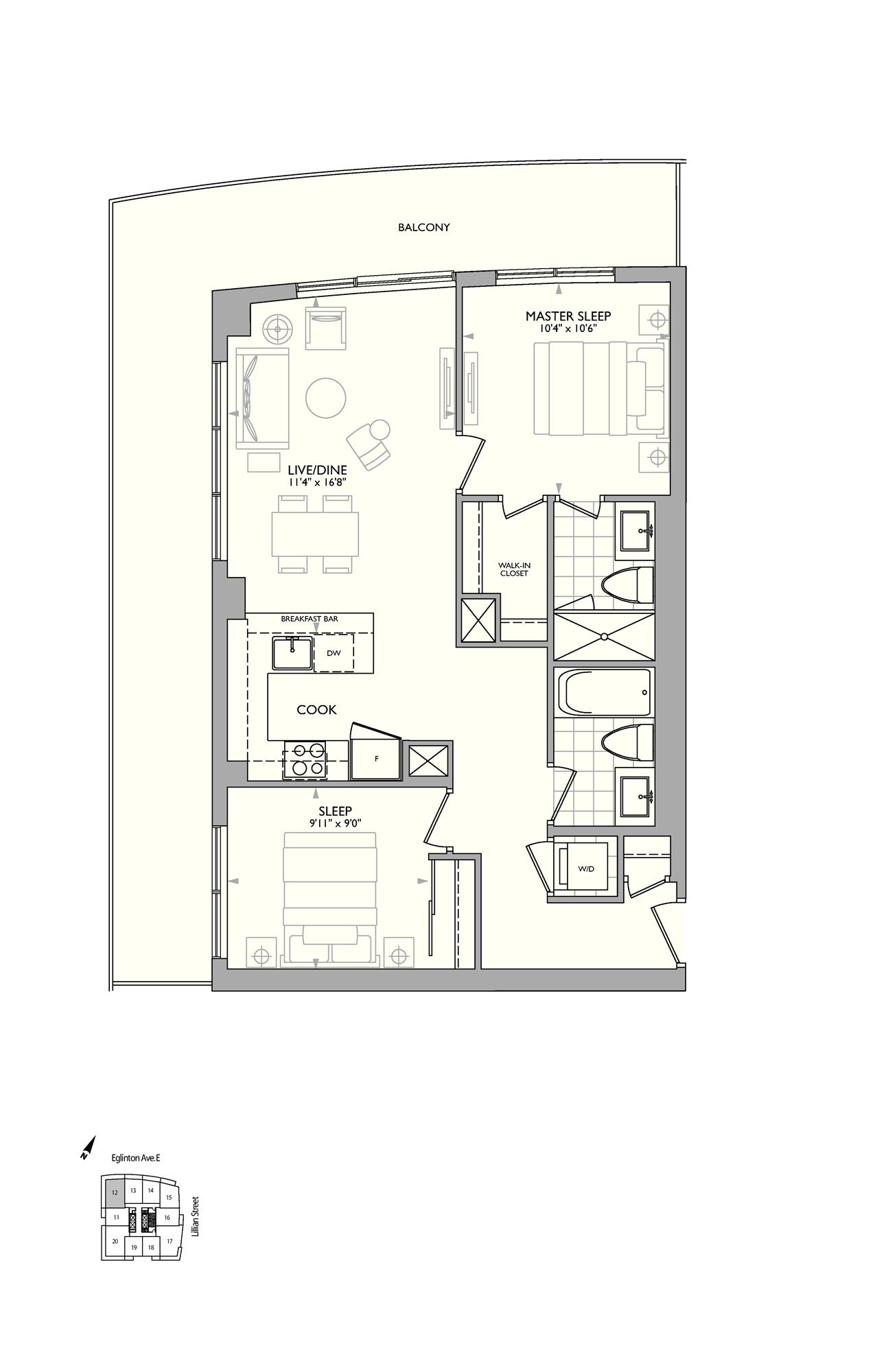
1베드 + 1 덴 콘도 $535,000
33층 -89 Dunfield Ave (West Tower) 서쪽 타워
sales price: $535,000- 세일 가격- $535,000
1 bed + den
North West view, level 33 – 북서쪽 방향 33층
695 sqft + balcony 99 sqft – 크기 695 스케어 피트(19.5 평) + 99 sf
Parking 1 파킹장 1개
10% down, 15% on closing
Tentative Occupancy: Sept 06, 2016 / 입주 예상 : 2016년 9월 6일
1 베드 콘도 $442,000
33 층-89 Dunfield Ave (West Tower)
sales price: $442,000
1 bed
South view, level 33 (남쪽 방향 33층)
547 sqft (15.4 평) + balcony 52 sqft
Parking 1 1 파킹장 1개
10% down, 15% on closing
Tentative Occupancy: Sept 6, 2016 /입주 예상 : 2016년 9월 6일
1sf = 0.0282 평
100sf = 2.82 평
1000sf = 28.2 평
The Madison Condo Specs 메디슨 콘도 상세 정보
Number of Storeys 33
Total Number of Suites 646
Floor Plans 7
Suite Size Range 564 to 1214 sq ft
Ceiling Height 9’0″-10’0″
Price / sq ft from $653
Parking Price Included
Locker Price $4,500
% Sold 98%
Architects Kirkor Architects
The Building
– 60,000 square feet retail at your door step
– Conveniently located steps from the Yonge and Eglinton subway
– Most suites are desinged with terraces or balconies with glass and rail treatment as per plan
– Privacy screens dividing terraces or balconies, where applicable
– Four elevators in the west tower provide quick service to your floor
– Mailrooms are conveniently located on the ground level near the elevators
– Parking is available for residents and visitors in the underground garage
– Specially designed bicycle storage areas in the underground garage
– Separate indoor storage locker units available
The Amenities
– Extensive lifestyle amenities provided in approximately 28,000 square feet of indoor and outdoor areas located on the 4th and 8th floors
– The integrated design of the indoor and outdoor amenity area on the south side creates a great environment with the following:
– Fully equipped fitness centre on two levels overlooking Eglinton Avenue with a two-storey high window wall providing extensive natural light and interesting views
– Naturally lit yoga/pilates studio has direct access to an adjoining outside terrace
– Indoor salt-water lap pool has full height window walls on two sides bringing the outdoors in
– Indoor hot tub off the pool deck is surrounded by full height glass walls with views to the outdoor amenity area
– Co-ed steam room and sauna room
– Men’s and women’s change room
– Private movie theatre features a large screen with seating for up to 20
– Magnificent two-storey multi-purpose party and games room including lounge areas, double sided bar, billiard table and card tables, opens to the spectacular outdoor amenity area
– Inspired private dining room for your catered events
– Fully equipped demonstration kitchen with dining/sitting areas and a full height glass wall providing views and direct access to the outdoor amenity area
– Impressive outdoor amenity area featuring a centrally located fire pit surrounded by furnished lounge areas with planter boxes integrated into the overall design
– Cabanas feature BBQs, sitting/ dining areas and planter boxes for added privacy
– Computer and meeting room provides a seperate, quiet space for individual use or group activities
– The landscaped 8th floor outdoor amenity area provides a Zen-style retreat with a water feature, tress and furnished lounge areas.
The Suites
– Adding an element of spaciousness and light to The Madison’s unique suite layouts are ceiling heights of approximately 9ft. in all principal rooms
– Expansive floor to ceiling windows allow an abundance of natural light and panoramic views and security door viewer
– Select from a fashionable range of easy care high performance plank laminate flooring for the foyer, kitchen, dining, living, den and bedroom(s)
– Sliding and/or swing door to balconies or terraces, as per plan
– White textured ceilings throughout, except in bathrooms which are smooth finished in white semi-gloss latex
– All drywall and trim primed and painted in an off-white latex paint
– Contemporary flat panel doors with lever handle for bathrooms, bedrooms and laundry rooms, as per plan
– Sliding doors or hinged doors on closets, as per plan
– All closets fitted with wire shelving
– Sliding glass door to master bedroom or second bedroom, as per plan
– Stacked washer/dryer vented to exterior
– Ceramic flooring in laundry area
– Individually controlled heating and cooling system
– In-suite smoke detector
The Kitchen
– High performance, plank laminate floor
– Choose from a selection of designer series kitchen cabinetry
– Granite countertop with polished double square edge
– Stainless steel single bowl undermount sink with sleek single lever pull out faucet
– Designer series ceramic subway tile backsplash above counter
– Under-cabinet task lighting
– Ceiling mounted contemporary track lighting fixture, where applicable
– Upgraded hardware for base and upper cabinetry
– A convenient island or flush breakfast bar, as per plan
– Full size appliance package is stainless steel with black accents and includes:
– Built-in oven
– Built-in ceramic cook-top
– Microwave hood fan vented to exterior
– Refrigerator with top mount freezer
– Build-in dishwasher
The Bathrooms
– Custom designed bathroom cabinetry integrates with the vanity mirror, medicine cabinet and light fixture
– Caesarstone countertop with rectangular white undermount porcelain sink and single lever faucet
– Contemporary selection of designer ceramic tile on floors, tub surround and shower walls as per plan.
– Frameless glass shower enclosure, as per plan
– Mosaic shower floor tile in all separate shower enclosures
– Waterproof shower ceiling fixture, as per plan
– White acrylic soaker tub
– White plumbing fixtures
– Exterior vented exhaust fan
– Entry privacy lock
– Pressure balanced valve for tub and shower
The Electrical Features
– Individual hydro metering for each suite
– White decora switches and matching electrical outlets
– Light fixtures provided in kitchen, bathrooms, and walk-in closets
– Capped ceiling outlet in bedrooms and dining area, if applicable
– Cable television outlets in living room, den, master bedroom and secondary bedrooms
– Telephone outlets in living room, den, master bedroom and secondary bedrooms
– Service panel with circuit breaker
The Security Features
– Concierge on duty 24 hours a day 7 days a week
– Surveillance cameras in key areas of underground garage
– Closed circuit camera monitoring at select building entry points
– Electronic communication system in lobby vestibule permitting visitors to communicate with individual suites
– Electronic access control system for amenity areas, parking garage and other common areas
The Builder
Madison Homes is a member of BILD (Building Industry and Land Development Association) of Toronto. All suites protected under the Tarion Warranty Corporation. All interior floor, wall finishes and materials are to be chosen with the assistance of the Builder’s Interior Design Consultant. All materials and other selections for which the Purchaser is entitled to make a selection are to be chosen from Builder’s samples, and are as per Builder’s specifications. Purchaser shall only be entitled to make such selections provided that the items are not already ordered or installed. Size, specifications, features and finishes are subject to change without notice. E. & O.E.
토론토 미드타운 에글링턴의 투자가치!!!!
토론토 미디타운인 에글링턴은 동서를 연결하는 LRT (전차) 건설과 함께 현재 새로운 도시 건설을 위해 한참 공사중입니다.
Eglinton Connects is about planning for the future Eglinton Avenue, and how to best leverage investment in rapid transit for the benefit of our communities and our city.(정부 이글링턴 도시사업계획)
따라서 장기적인 투자를 고려하시는 분들에게 적합한 위치가 되며 토론토 다운타운과도 지하철로 5-10분 그리고 공항과 스카보로를 잊는 동선에 있어 상업적으로도 많은 발전을 기대할수 있습니다.
Eglinton_Trai RT_proJect
Eglinton_Train LRT_지하철 proJect
클릭하시면 큰사진으로 보실수 있습니다.
콘도 전매에 대한 궁금한 점이 있으시면 언제든 문의하셔 주시면 자세한 안내해 드립니다.
전화 647-389-5234
이메일 sun@sunkim.ca
카톡 jstoronto




